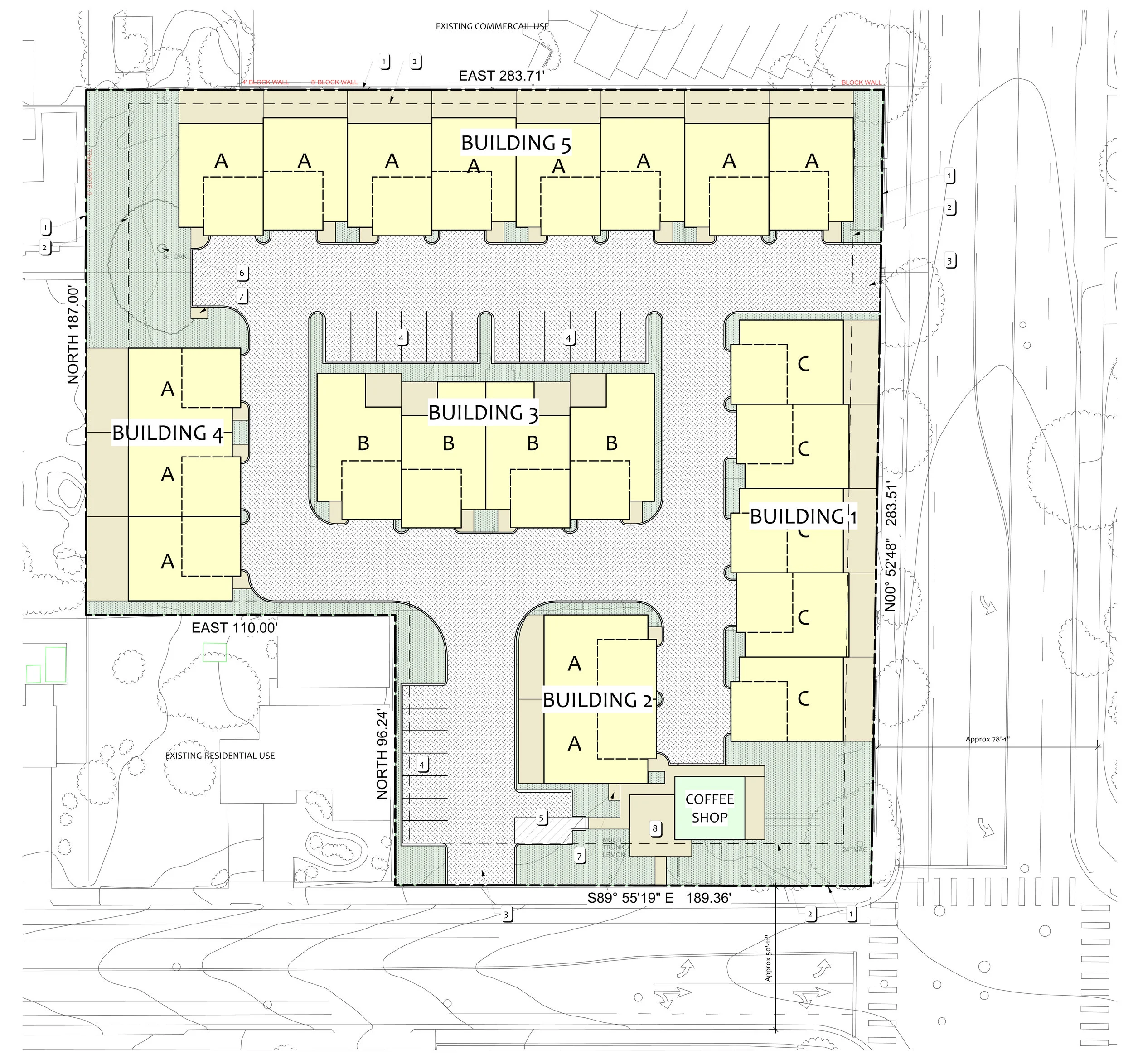
Fair Oaks Townhomes at Halcyon
$799,000 to $789,000
Click Below for Floor Plans and Elevations
CURRENT PROGRESS as of 3/10/25
Unit A: 1,761 sq.ft.
Unit B: 1,879 sq.ft.
Unit C: 1,801 sq.ft.
.
5 - 2 Bedroom Units
17 - 3 Bedroom Units
To Request More Information Please Complete the Form Below
